주메뉴 바로가기 본문 바로가기

무너진 마음에도 복구가 필요합니다. 포항지진트라우마센터

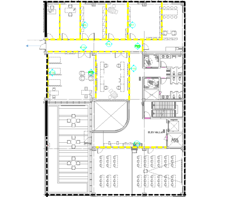
시설구성

1층 주출입구, 안내데스크, 스트레스 측정실, 상담실, 조경갤러리, 부출입구

조경갤러리

부출입구

스트레스 측정실 상담실 안내데스크

보건소 연결통로

트라우마센터 주출입구

돋보기 아이콘을 클릭하시면 사진을 확인 하실 수 있습니다.

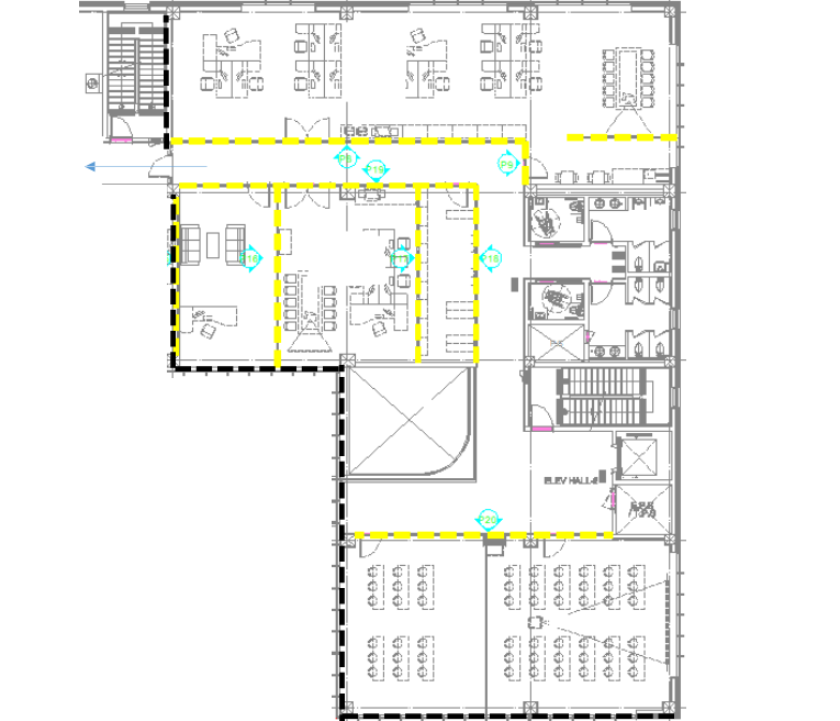
2층 어울림홀, 안내데스크, 심신안정실1,2,3, 마음케어룸, 상담실, 정원, 탕비실

2층은 어울림홀, 안내데스크, 심신안정실1,2,3, 마음케어룸, 상담실, 정원, 탕비실이 위치해있습니다.

보건소 연결통로

심신안정실1 심신안정실2 심신안정실3 심신
안정실4
마음케어룸 어울림홀 안내데스크 정원

돋보기 아이콘을 클릭하시면 사진을 확인 하실 수 있습니다.

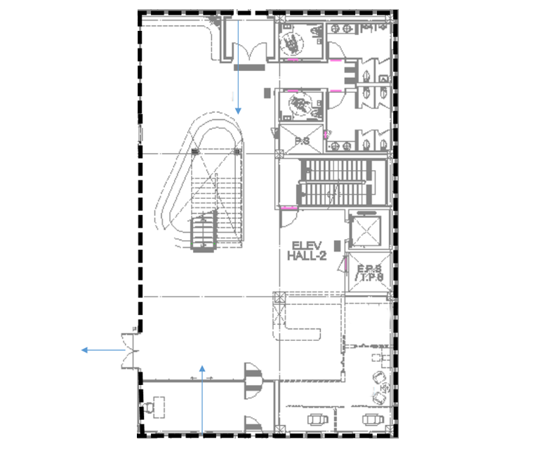
3층 테라피룸, 심리치료실1(상담실), 심리치료실2, 회의실, 직원휴게실, 창고

3층은 테라피룸, 심리치료실1(상담실), 심리치료실2, 회의실, 직원휴게실, 창고가 위치해있습니다.

창고

창고

창고

직원휴게실

보건소연결통로

테라스

심리치료실1
상담실
심리치료실3
(상담실)
심리치료실2 테라피룸

테라피룸2

돋보기 아이콘을 클릭하시면 사진을 확인 하실 수 있습니다.

4층 온누리홀, 화상상담실, 회의실, 사무실, 문서고

4층은 온누리홀, 화상상담실, 회의실, 사무실, 문서고가 위치해이습니다.

보건소연결통로

문서고

사무실

회의실 온누리홀 화상상담실

돋보기 아이콘을 클릭하시면 사진을 확인 하실 수 있습니다.

5층 옥상정원

5층은 옥상정원이 위치해있습니다

보건소 연결통로

옥상정원

돋보기 아이콘을 클릭하시면 사진을 확인 하실 수 있습니다.